รายละเอียดโครงการ
Entrance From BTS

ที่นี่...เรายกระดับชีวิต ให้เหนือกว่า

คอนโด ริชพาร์ค เทอร์มินอล (Rich Park Terminal)
เชื่อมต่อสถานีรถไฟฟ้าสายหยุด พหลโยธิน 59 ทันทีด้วย Sky Walk
เพลิดเพลินกับ Shopping Mall ภายในโครงการ
Jogging Track โอบล้อม สวนสวย ชั้น 15
Fitness, Swimming Pool ระบบเกลือพร้อมด้วย
Lobby Co-Working Space ตอบโจทย์ยุค Lifestyle

ชื่อโครงการ        Rich park terminal พหลโยธิน59
เจ้าของโครงการ   บริษัท ริชี่เพลซ 2002 จำกัด (มหาชน)
สถานที่ตั้ง          ถนนพหลโยธิน 59 ติดรถไฟฟ้าสถานีพหลโยธิน 59
ลักษณะโครงการ   3 -1-05 ไร่ 
ยูนิตรวม           สไตล์ โมเดิล คอนโดมิเนี่ยม 14 ชั้น
                     ทั้งหมด 563 ยูนิต
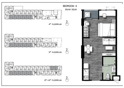
ลักษณะห้องชุด    Type A 28.57-29.91 ตร.ม.   
                     Type B 33.14-34.45 ตร.ม.   
                     Type C 24.61-26.37 ตร.ม.   
                     Type D 34.40 ตร.ม.
สิ่งอำนวยความสะดวก
- ล็อบบี้ ไฮบริด ลอฟท์
- พื้นที่อเนกประสงค์
- Shopping Mall
- สวนชั้นลอยฟ้า
- สระว่ายน้ำ
- ฟิตเนสออกกำลังกาย
- ระบบรักษาความปลอดภัย 24 ชั่วโมง
- บัตรผ่านประตูระบบการรักษาความปลอดภัย
- พื้นที่สำหรับทำงาน 
- ที่จอดรถ 40% รวมจอดซ้อนคัน

Floor Plan

Unit Plan

สถานที่ตั้ง

0 เมตร จากรถไฟฟ้า BTS สายสีเขียวหมอชิต-คูคต รถไฟฟ้าสถานีสายหยุด พหลโยธิน 59
5 นาที ถึง ตลาดยิ่งเจริญ

30 นาที ถึงพญาไท (จุดเชื่อมต่อ Airport Rail Link สะดวกสบายสู่สนามบินสุวรรณภูมิ)
35 นาที ถึงย่านออฟฟิศใจกลางเมือง
30 นาที ถึงสยามสแควร์ สยามพารากอน
 
ใกล้จุด ขึ้น-ลง ทางด่วนฉลองรัช
ใกล้สนามบินดอนเมือง

Rich Park Terminal หลักสี่อยู่ใกล้แหล่งช้อปปิ้งต่างๆ มากมาย เช่น
เทสโก้ โลตัส สาขาหลักสี่     500 ม.
บิ๊กซี สะพานใหม่               1.6 กม.
เซ็นทรัลพลาซา รามอินทรา   1.7 กม.
บิ๊กซี เอ็กซ์ตร้า รามอินทรา   3.9 กม.

Rich Park Terminal หลักสี่ ยังอยู่ใกล้กับโรงพยาบาลและสถานศึกษา เช่น
โรงพยาบาลจุฬาภรณ์         3.3 กม.
โรงพยาบาลภูมิพลอดุลยเดช 3.6 กม.
มหาวิทยาลัยราชภัฏพระนคร  1.9 กม.
มหาวิทยาลัยนอร์ทกรุงเทพ วิทยาเขตสะพานใหม่ (2.6 กม.)
มหาวิทยาลัยศรีปทุมบางเขน  3.2 กม.

สอบถามข้อมูลเพิ่มเติม

โทร.081-912-8883


Powered by MakeWebEasy.com
เว็บไซต์นี้มีการใช้งานคุกกี้ เพื่อเพิ่มประสิทธิภาพและประสบการณ์ที่ดีในการใช้งานเว็บไซต์ของท่าน ท่านสามารถอ่านรายละเอียดเพิ่มเติมได้ที่ นโยบายความเป็นส่วนตัว  และ  นโยบายคุกกี้